 
            
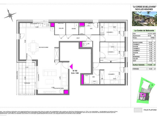
                NOUVEAUTE, dans chalet B, appartement T5 neuf lot B102 situé au 1er étage comprenant séjour double avec cuisine ouverte le tout donnant sur terrasse, 3 chambres, dégagement, salle de douche, wc séparé, cellier et buanderie.  
Cave, casier à skis et parking privatif en sous-sol.
Travaux en cours. 
Renseignements, visites sur site et plans : merci de nous contacter au +33 611953182
            
 
                                             
                                             
                                             
                                                    
                                             
                                            